0

Můj katalog

Tyto nemovitosti jste si vybral/a do svého katalogu. Budete-li mít zájem, můžete jednotlivé položky řadit dle potřeby, odebrat z katalogu nebo naopak přidat z dříve prohlížených položek. Stažení katalogu dokončíte stisknutím tlačítka „stáhnout můj katalog“.

Vybrané nemovitosti

bytová jednotka projekt plocha karta nemovitosti transakce odebrat z katalogu

stáhnout katalog | stáhnout katalog / ceník

Karlínské náměstí 5 - Byt A1.1

1.NP

dispozice plocha B/L/T transakce cena bez DPH cena celkem do katalogu
1+kk
21.7 m2
prodej
4 990 000 CZK
4 990 000 CZK
A1.1
poptat nemovitost
kk - kuchyňský kout | B - balkón | L - lodžie | T - terasa
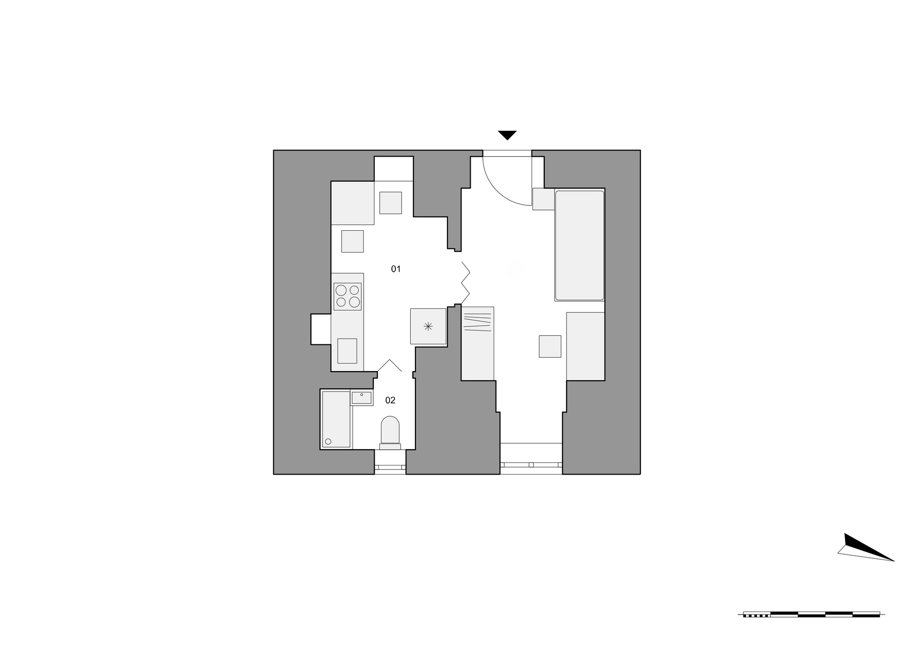
obytná plocha 21.7 m2
01 obývací pokoj + kk 18.8 m2
02 koupelna s WC 2.1 m2
příčky, sloupy a šachty 0.8 m2
užitná plocha 2.6 m2
01 Sklepní kóje 2.6 m2
celková plocha 24.3 m2
plánek podlaží
Byt A1.1

fotogalerie

vizualizace

vizualizace

vizualizace

vizualizace

vizualizace

vizualizace 2. etapy

Domluvit si schůzku či prohlídku

Potřebujete více informací o nemovitosti nebo si chcete sjednat prohlídku? Vyplňte formulář a my se vám obratem ozveme.

Vaše osobní údaje budou zpracovány podle Podmínek zpracování osobních údajů.


Generování PDF