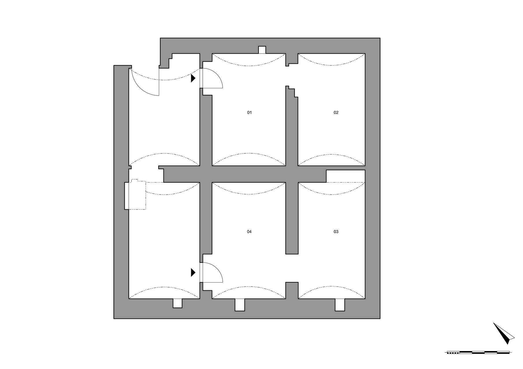
Nuselská 11 - Sklad SK1.01
1.NP
poptat nemovitost
kk - kuchyňský kout |
B - balkón |
L - lodžie |
T - terasa
| obytná plocha | 24.8 m2 |
|---|---|
| 01 sklad | 14.5 m2 |
| 02 sklad | 9.6 m2 |
| příčky, sloupy a šachty | 0.7 m2 |
| celková plocha | 24.8 m2 |
| garáže, sklepy, sklady | |
|---|---|
| 01 sklad | SK1.01 |
| 02 sklad | SK1.01 |
