Můj katalog

Tyto nemovitosti jste si vybral/a do svého katalogu. Budete-li mít zájem, můžete jednotlivé položky řadit dle potřeby, odebrat z katalogu nebo naopak přidat z dříve prohlížených položek. Stažení katalogu dokončíte stisknutím tlačítka „stáhnout můj katalog“.

Vybrané nemovitosti

bytová jednotka projekt plocha karta nemovitosti transakce odebrat z katalogu

stáhnout katalog | stáhnout katalog / ceník

Vosmíkových 3 - Byt A3.1

3.NP

dispozice plocha B/L/T transakce cena bez DPH cena celkem do katalogu
2+kk
49.3 m2
prodej
7 090 000 CZK
7 090 000 CZK
A3.1
poptat nemovitost
kk - kuchyňský kout | B - balkón | L - lodžie | T - terasa
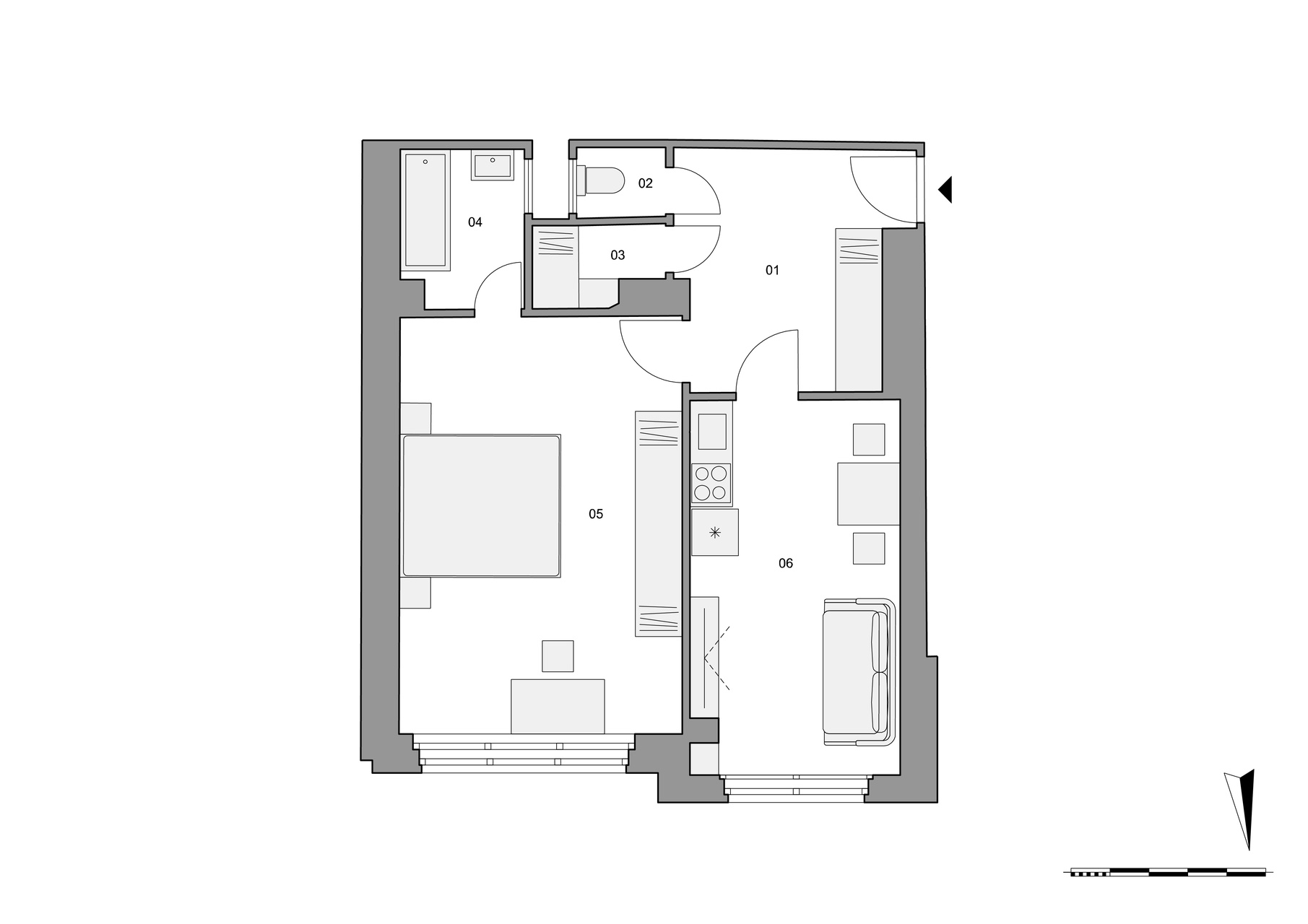
obytná plocha 49.3 m2
01 chodba 8.6 m2
02 wc 1.1 m2
03 komora 1.7 m2
04 koupelna 3.2 m2
05 ložnice 19.5 m2
06 obývací pokoj + kk 13 m2
příčky, sloupy a šachty 2.2 m2
celková plocha 49.3 m2
plánek podlaží
Byt A3.1

fotogalerie

vizualizace

vizualizace

Domluvit si schůzku či prohlídku

Potřebujete více informací o nemovitosti nebo si chcete sjednat prohlídku? Vyplňte formulář a my se vám obratem ozveme.

Vaše osobní údaje budou zpracovány podle Podmínek zpracování osobních údajů.


Generování PDF