0

My catalog

You have selected these properties for you catalogue. If interested, you can sort individual items as needed, take them out of the catalogue or add items viewed earlier. Complete downloading of the catalogue by clicking the button "Download my catalogue“.

Selected properties

flat residence area Card of properties transaction remove from the catalog

download catalog | Download catalogue / price list

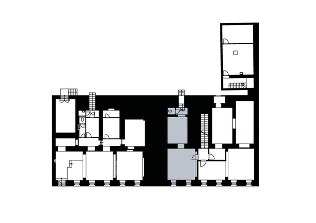
Veletržní 31 - Komerční prostory B01.101

1.PP

disposition area B/L/T transaction VAT exclusive final price add to the catalogue
commercial premises
53.6 m2
sale
- - sold
kk - Kitchen corner | B - balcony | L - lodge | T - terrace
living area 53.6 m2
00 commercial premises 53.6 m2
total area 53.6 m2
floor plan
Komerční prostory B01.101

Photo gallery

Generate PDF