My catalog

You have selected these properties for you catalogue. If interested, you can sort individual items as needed, take them out of the catalogue or add items viewed earlier. Complete downloading of the catalogue by clicking the button "Download my catalogue“.

Selected properties

flat residence area Card of properties transaction remove from the catalog

download catalog | Download catalogue / price list

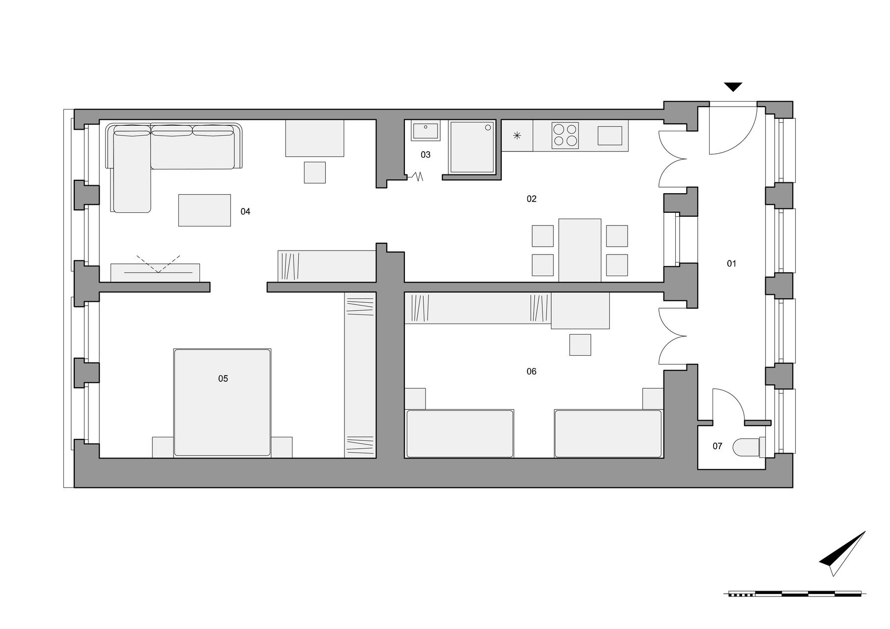
Nuselská 11 - Byt A2.2

2.NP

disposition area B/L/T transaction VAT exclusive final price add to the catalogue
3+1
82.7 m2
sale
display the price
display the price
A2.2
kk - Kitchen corner | B - balcony | L - lodge | T - terrace
living area 82.7 m2
01 living area 82.7 m2
usable area 1.2 m2
01 storage premises 1.2 m2
other areas 0 m2
01 parking space 0 m2
total area 83.9 m2
Garages, basements, storage premises
01 storage premises SK2.01

Photo gallery

Generate PDF