0

My catalog

You have selected these properties for you catalogue. If interested, you can sort individual items as needed, take them out of the catalogue or add items viewed earlier. Complete downloading of the catalogue by clicking the button "Download my catalogue“.

Selected properties

flat residence area Card of properties transaction remove from the catalog

download catalog | Download catalogue / price list

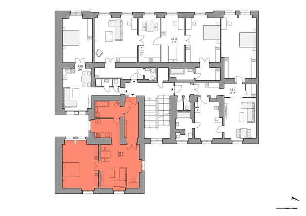
Karlínské náměstí 5 - Byt A3.1

3.NP

disposition area B/L/T transaction VAT exclusive final price add to the catalogue
2 bedrooms + kitchen
84.9 m2
sale
13 290 000 CZK
13 290 000 CZK
A3.1
ask for property
kk - Kitchen corner | B - balcony | L - lodge | T - terrace
living area 84.9 m2
01 Entrance hall (foyer) 9.7 m2
02 Living room 27.6 m2
03 Bedroom 26.3 m2
04 Kitchen 8.1 m2
05 Bathroom with WC 7.1 m2
Partitions, pillars and shafts 6.1 m2
usable area 5.5 m2
01 Sklepní kóje 5.5 m2
total area 90.4 m2
floor plan
Byt A3.1

Photo gallery

vizualizace navrhované dispozice

vizualizace navrhované dispozice

vizualizace navrhované dispozice

vizualizace navrhované dispozice

vizualizace navrhované dispozice

navrhovaná dispozice

vizualizace

vizualizace

vizualizace

vizualizace

Cuntact Us

Do you need more information about the property or would you like to arrange a viewing? Fill out the form and we will get back to you shortly.

Your personal information will be processed according to the Privacy Policy .


Generate PDF