My catalog

You have selected these properties for you catalogue. If interested, you can sort individual items as needed, take them out of the catalogue or add items viewed earlier. Complete downloading of the catalogue by clicking the button "Download my catalogue“.

Selected properties

flat residence area Card of properties transaction remove from the catalog

download catalog | Download catalogue / price list

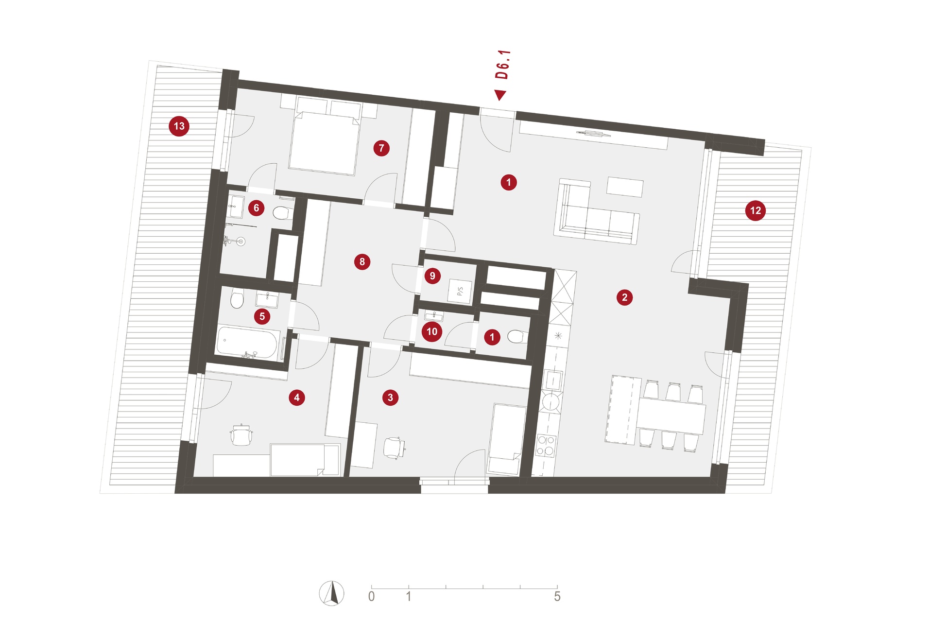
Rezidence Laurová - Byt D6.1

6.NP

disposition area B/L/T transaction VAT exclusive final price add to the catalogue
4 bedrooms + kitchen corner
131.3 m2
T
sale
display the price
display the price
D6.1
kk - Kitchen corner | B - balcony | L - lodge | T - terrace
living area 131.3 m2
01 Entrance hall (foyer) 13.1 m2
02 Living room + KK 39.5 m2
03 Bedroom 14.9 m2
04 Bedroom 13.2 m2
05 Bathroom with WC 4 m2
06 Bathroom with WC 3.6 m2
07 Bedroom 13.8 m2
08 Corridor 11.6 m2
09 Pantry 1.7 m2
10 Hall WC 1.7 m2
11 WC 1.8 m2
Partitions, pillars and shafts 12.4 m2
usable area 4.7 m2
01 storage premises 4.7 m2
other areas 33.3 m2
12 terrace 14 m2
13 terrace 19.3 m2
total area 169.3 m2
Garages, basements, storage premises
01 storage premises SK01.39
01 Garage parking G01.01
01 Garage parking G01.02
floor plan
Byt D6.1

Generate PDF