My catalog

You have selected these properties for you catalogue. If interested, you can sort individual items as needed, take them out of the catalogue or add items viewed earlier. Complete downloading of the catalogue by clicking the button "Download my catalogue“.

Selected properties

flat residence area Card of properties transaction remove from the catalog

download catalog | Download catalogue / price list

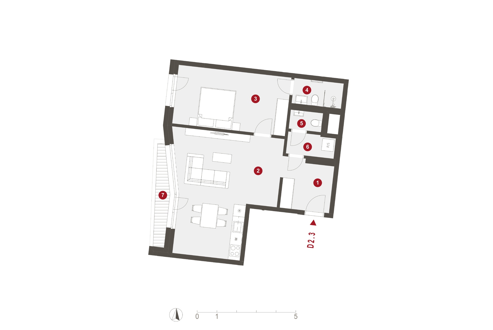
Rezidence Laurová - Byt D2.3

2.NP

disposition area B/L/T transaction VAT exclusive final price add to the catalogue
2 bedrooms + kitchen corner
64.4 m2
B
sale
display the price
display the price
D2.3
kk - Kitchen corner | B - balcony | L - lodge | T - terrace
living area 64.4 m2
01 Entrance hall (foyer) 6.4 m2
02 Living room + KK 28.7 m2
03 Bedroom 17.2 m2
04 Bathroom with WC 3.5 m2
05 WC 1.8 m2
06 Hall WC 2.7 m2
Partitions, pillars and shafts 4.1 m2
usable area 1.8 m2
01 Basement (cellar) 1.8 m2
other areas 3 m2
07 balcony 3 m2
total area 69.2 m2
Garages, basements, storage premises
01 Garage parking G02.83
01 Basement (cellar) SK01.16
floor plan
Byt D2.3

Generate PDF