My catalog

You have selected these properties for you catalogue. If interested, you can sort individual items as needed, take them out of the catalogue or add items viewed earlier. Complete downloading of the catalogue by clicking the button "Download my catalogue“.

Selected properties

flat residence area Card of properties transaction remove from the catalog

download catalog | Download catalogue / price list

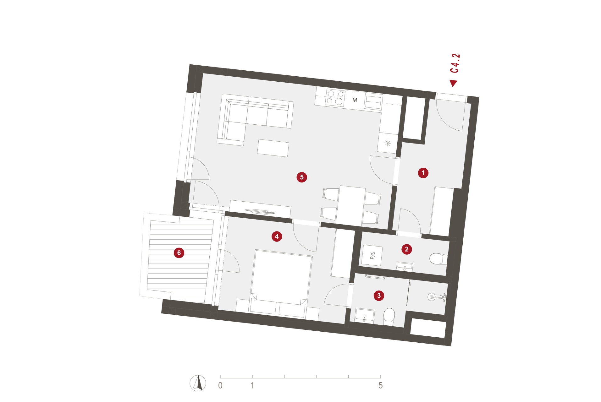
Rezidence Laurová - Byt C4.2

4.NP

disposition area B/L/T transaction VAT exclusive final price add to the catalogue
2 bedrooms + kitchen corner
57 m2
B
sale
display the price
display the price
C4.2
kk - Kitchen corner | B - balcony | L - lodge | T - terrace
living area 57 m2
01 Entrance hall (foyer) 7.1 m2
02 WC 3.2 m2
03 Bathroom with WC 4.1 m2
04 Bedroom 11.7 m2
05 Living room + KK 26.2 m2
Partitions, pillars and shafts 4.7 m2
usable area 4.4 m2
01 Basement (cellar) 4.4 m2
other areas 4.6 m2
06 balcony 4.6 m2
total area 66 m2
Garages, basements, storage premises
01 Garage parking G01.10
01 Basement (cellar) SK01.08
floor plan
Byt C4.2

Generate PDF