My catalog

You have selected these properties for you catalogue. If interested, you can sort individual items as needed, take them out of the catalogue or add items viewed earlier. Complete downloading of the catalogue by clicking the button "Download my catalogue“.

Selected properties

flat residence area Card of properties transaction remove from the catalog

download catalog | Download catalogue / price list

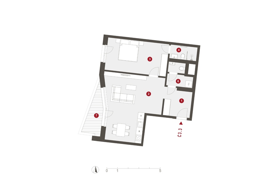
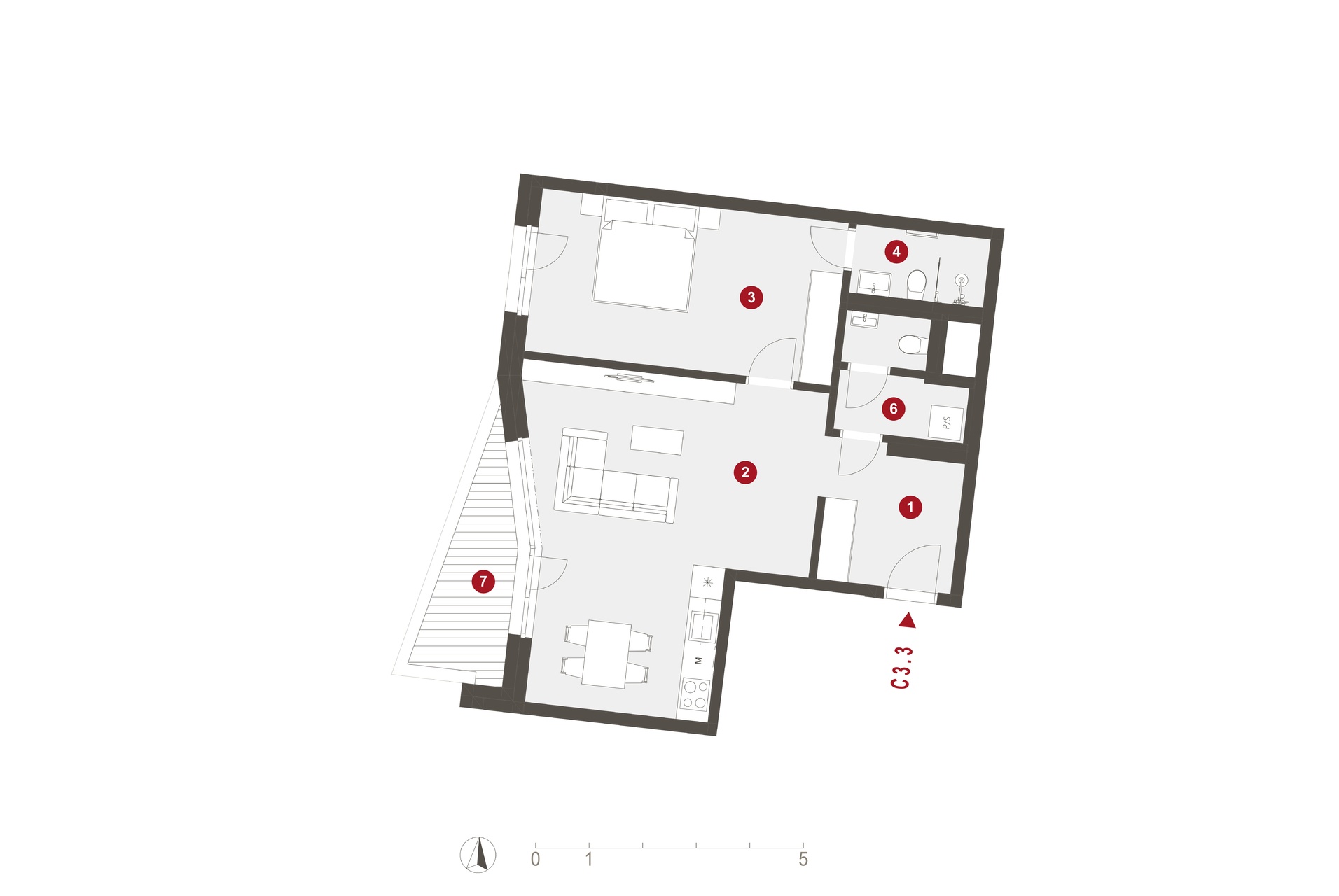
Rezidence Laurová - Byt C3.3

3.NP

disposition area B/L/T transaction VAT exclusive final price add to the catalogue
2 bedrooms + kitchen corner
64.8 m2
B
sale
display the price
display the price
C3.3
kk - Kitchen corner | B - balcony | L - lodge | T - terrace
living area 64.8 m2
01 Entrance hall (foyer) 6.6 m2
02 Living room + KK 28.8 m2
03 Bedroom 17.6 m2
04 Bathroom with WC 3.5 m2
05 WC 1.7 m2
06 Warerobe (walk-in closet) 2.7 m2
Partitions, pillars and shafts 3.9 m2
usable area 2.4 m2
01 Basement (cellar) 2.4 m2
other areas 5.4 m2
07 balcony 5.4 m2
total area 72.6 m2
Garages, basements, storage premises
01 Garage parking G01.41
01 Basement (cellar) SK01.34
floor plan
Byt C3.3

Generate PDF