My catalog

You have selected these properties for you catalogue. If interested, you can sort individual items as needed, take them out of the catalogue or add items viewed earlier. Complete downloading of the catalogue by clicking the button "Download my catalogue“.

Selected properties

flat residence area Card of properties transaction remove from the catalog

download catalog | Download catalogue / price list

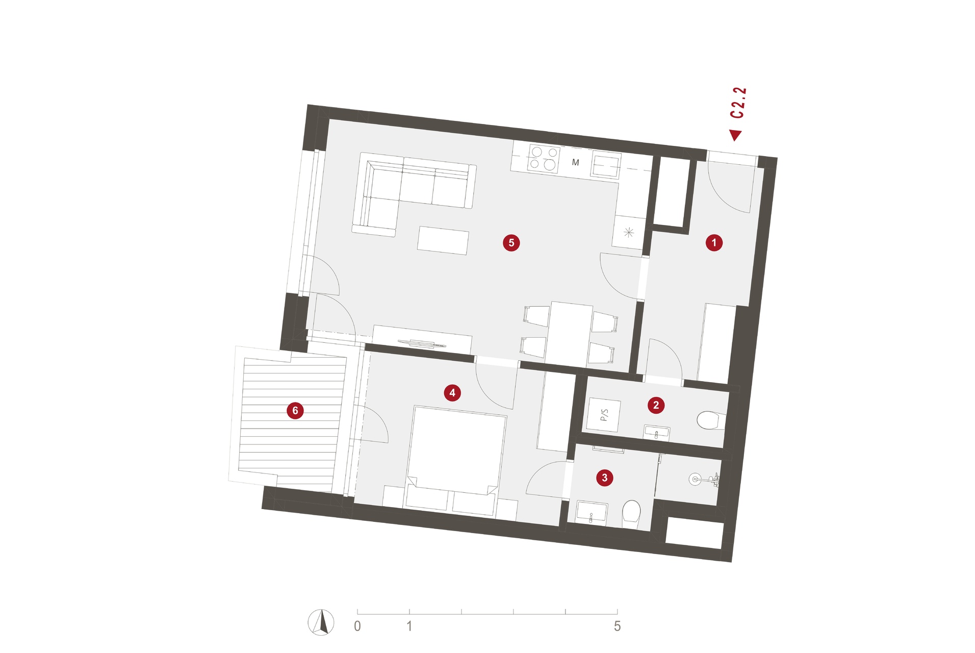
Rezidence Laurová - Byt C2.2

2.NP

disposition area B/L/T transaction VAT exclusive final price add to the catalogue
2 bedrooms + kitchen corner
56.9 m2
B
sale
display the price
display the price
C2.2
kk - Kitchen corner | B - balcony | L - lodge | T - terrace
living area 56.9 m2
01 Entrance hall (foyer) 7.1 m2
02 WC 3.2 m2
03 Bathroom with WC 3.8 m2
04 Bedroom 11.7 m2
05 Living room + KK 26.2 m2
Partitions, pillars and shafts 4.9 m2
usable area 4.5 m2
01 Basement (cellar) 4.5 m2
other areas 2.8 m2
06 balcony 2.8 m2
total area 64.2 m2
Garages, basements, storage premises
01 Garage parking G01.07
01 Basement (cellar) SK01.03
floor plan
Byt C2.2
1. podzemní podlaží
1. podzemní podlaží

Generate PDF