My catalog

You have selected these properties for you catalogue. If interested, you can sort individual items as needed, take them out of the catalogue or add items viewed earlier. Complete downloading of the catalogue by clicking the button "Download my catalogue“.

Selected properties

flat residence area Card of properties transaction remove from the catalog

download catalog | Download catalogue / price list

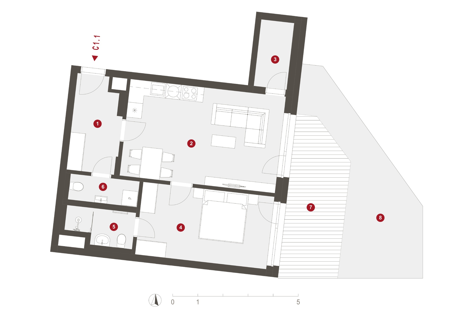
Rezidence Laurová - Byt C1.1

1.NP

disposition area B/L/T transaction VAT exclusive final price add to the catalogue
2 bedrooms + kitchen corner
61.8 m2
T
sale
display the price
display the price
C1.1
kk - Kitchen corner | B - balcony | L - lodge | T - terrace
living area 61.8 m2
01 Entrance hall (foyer) 7.2 m2
02 Living room + KK 24.1 m2
03 Pantry 3.5 m2
04 Bedroom 15.3 m2
05 Bathroom with WC 4.2 m2
06 WC 3.3 m2
Partitions, pillars and shafts 4.2 m2
usable area 3.7 m2
01 Basement (cellar) 3.7 m2
other areas 31.7 m2
07 terrace 13.3 m2
08 Terrace with vegetation 18.4 m2
total area 97.2 m2
Garages, basements, storage premises
01 Basement (cellar) SK01.01
01 Garage parking G01.126
floor plan
Byt C1.1

Generate PDF