My catalog

You have selected these properties for you catalogue. If interested, you can sort individual items as needed, take them out of the catalogue or add items viewed earlier. Complete downloading of the catalogue by clicking the button "Download my catalogue“.

Selected properties

flat residence area Card of properties transaction remove from the catalog

download catalog | Download catalogue / price list

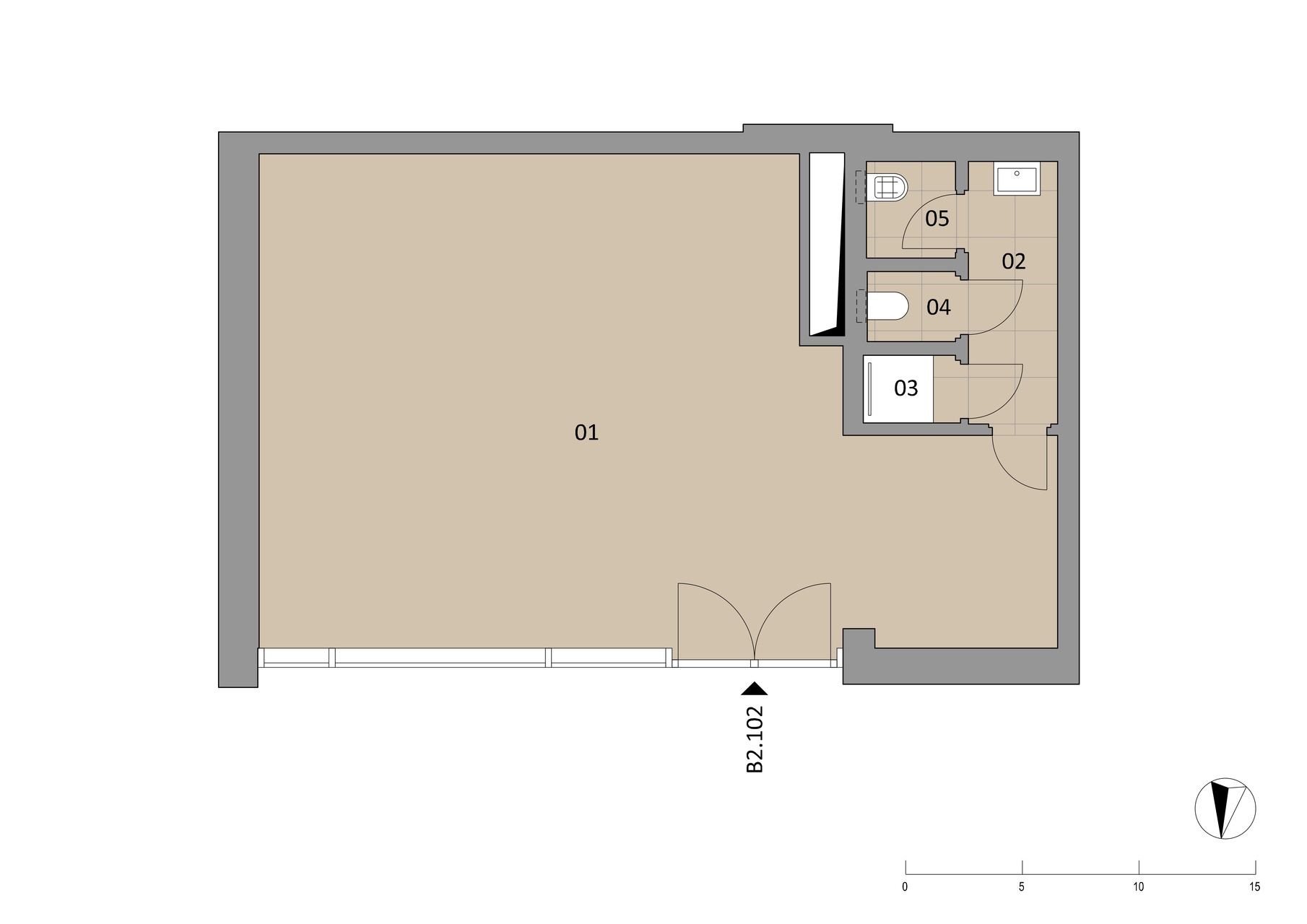
Rezidence Escape - Komerční prostory B2.102

2.NP

disposition area B/L/T transaction VAT exclusive final price add to the catalogue
commercial premises
65.3 m2
sale
5 446 280 CZK
6 590 000 CZK
B2.102
ask for property
kk - Kitchen corner | B - balcony | L - lodge | T - terrace
living area 65.3 m2
01 prodejna 53.7 m2
02 Hall WC 4.1 m2
03 sprcha 1.2 m2
04 WC 1.2 m2
05 Cleaning room 1.4 m2
Partitions, pillars and shafts 3.7 m2
usable area 3.9 m2
00 Basement (cellar) 3.9 m2
total area 69.2 m2
Garages, basements, storage premises
00 Basement (cellar) 3.9 m2
floor plan
Komerční prostory B2.102

Cuntact Us

Do you need more information about the property or would you like to arrange a viewing? Fill out the form and we will get back to you shortly.

Your personal information will be processed according to the Privacy Policy .


Generate PDF